|
|
Descriptions:
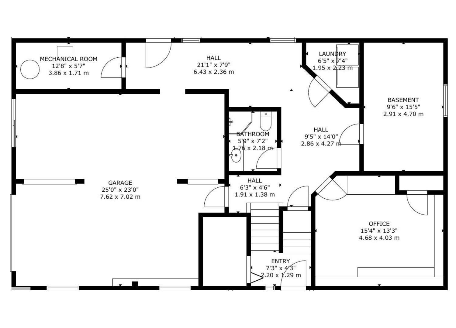
WALKOUT Bi-level with attached double garage (26Wx24L, heated, 220V, water) carport and shop on 3.61 acres in Hillview Estates subdivision, just south of Spring Lake & 10 mins west of Stony Plain. This 1,622 square foot (plus walkout basement) home features a vaulted ceiling, in-floor heat, security system and upgrades throughout. Two main floor living rooms, one with a corner gas fireplace. Gourmet kitchen with eat-up island, granite counters, corner pantry and dining area with deck access. Finishing off the main level: 2 full bathrooms & 3 bedrooms including the owner's suite with deck access & jacuzzi ensuite. In the basement: large den, storage room, laundry, 3-piece bathroom and garage access which is currently converted into a large rec room/gym. Outside: deck, patio, huge dog run, paved driveway and heated 30x40 shop with 11' tall door, 220V power, built-in compressor & airlines and water. Located near Blueberry school with easy access to HWY 628; 30 mins to Edmonton. Great opportunity!
|
|
|
|
|
|
|
|
| Site Influences: |
| Fenced, Golf Nearby, Private Setting, Schools, Shopping Nearby, Treed Lot |
|
|
| Location & Listing Info: |
| Neighbourhood: |
Hillview Estates (Parkland)
|
|
| Nearest Town: |
Stony Plain |
| Lot Size: |
3.61
acres
|
|
|
|
|
|
| Property Info: |
|
| Property Type: |
Detached Single Family |
| Home Style: |
Bi-Level |
| Year Built: |
1997 |
| Total Floor Area: |
2,626 sq. ft. |
| Road Access: |
Zone 90
|
|
|
|
|
|
|
|
|
|
|
|
|
|
|
|
| Rooms: |
|
| Total Bedrooms: |
3
(Bedrooms Above: 3)
|
| Bathrooms: |
Full: 3
/ Half: 0
|
| Rooms Above: |
7 |
|
|
|
|
|
| Additional Info: |
|
| Basement: |
Fully Finished |
| Basement Type: |
Full |
|
|
|
|
|
|
|
|
|
|
|
|
|
|
|
 |
Contact Barry Twynam -
#1 14 McLeod Avenue, Spruce Grove, Alberta, T7X 3X3
|
|
|
|
|
|
|
|
|
|
Copyright 2026 by the REALTORS® Association of Edmonton. All Rights Reserved. Data is deemed reliable but is not guaranteed accurate by the REALTORS® Association of Edmonton. Data was last updated February 18, 2026, 1:18 am. |
|
|
|
|
The data included on this website is deemed to be reliable, but is not guaranteed to be accurate by the REALTORS® Association of Edmonton.
MLS®, Multiple Listing Service®, and the associated logos are all registered certification marks owned by CREA and are used to identify real estate services provided by brokers and salespersons who are members of CREA. The trademarks REALTOR®, REALTORS® and the REALTOR® logo are controlled by The Canadian Real Estate Association (CREA) and identify real estate professionals who are members of CREA. Used under license.
|