|
|
Descriptions:
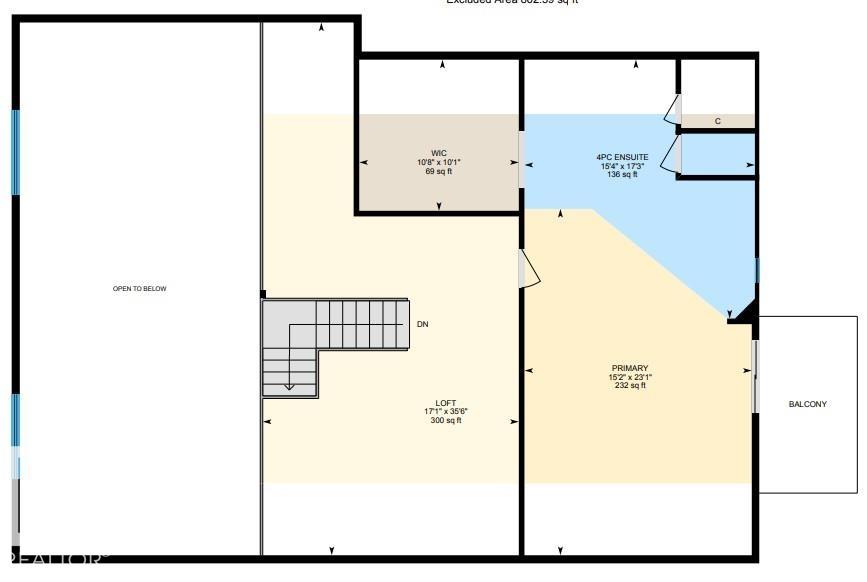
Offering over 2,800 sqft of living space, this lodge-style home features soaring vaulted ceilings, warm wood throughout, and a stunning open-to-below design that makes an immediate impression. The main living area is anchored by a beautiful stone fireplace, while the open kitchen and dining space are ideal for hosting and everyday living. Upstairs, the primary suite feels like a private retreat, complete with a freestanding wooden tub and rustic finishes that add to the home's character. Two additional bedrooms provide great space for family or guests, and the loft overlooking the main level offers flexible space for relaxing or accommodating visitors. Outside is where this property really separates itself. A massive 42x60 pole shed offers incredible storage, while the 24x36 heated shop is perfect for anyone needing a workspace--whether for projects, toys, or hobbies. With space, privacy, and features that are getting harder to find, this property delivers both lifestyle and utility in one package.
|
|
|
|
|
|
|
|
| Site Influences: |
| Flat Site, Landscaped, Level Land, Private Setting, Schools, Treed Lot |
|
|
| Location & Listing Info: |
| Neighbourhood: |
Huntingdon Heights
|
|
| Lot Size: |
4.41
acres
|
|
|
|
|
|
| Property Info: |
|
| Property Type: |
Detached Single Family |
| Home Style: |
1 and Half Storey |
| Year Built: |
1993 |
| Total Floor Area: |
2,810 sq. ft. |
| Road Access: |
Zone 90
|
|
|
|
|
|
|
|
|
|
|
|
|
|
|
|
| Rooms: |
|
| Total Bedrooms: |
3
(Bedrooms Above: 3)
|
| Bathrooms: |
Full: 2
/ Half: 0
|
| Rooms Above: |
6 |
|
|
|
|
|
| Additional Info: |
|
| Basement: |
No Basement |
| Basement Type: |
None |
|
|
|
|
|
|
|
|
|
|
|
|
|
|
|
 |
Contact Barry Twynam -
#1 14 McLeod Avenue, Spruce Grove, Alberta, T7X 3X3
|
|
|
|
|
|
|
|
|
|
Copyright 2026 by the REALTORS® Association of Edmonton. All Rights Reserved. Data is deemed reliable but is not guaranteed accurate by the REALTORS® Association of Edmonton. Data was last updated April 30, 2026, 2:50 am. |
|
|
|
|
The data included on this website is deemed to be reliable, but is not guaranteed to be accurate by the REALTORS® Association of Edmonton.
MLS®, Multiple Listing Service®, and the associated logos are all registered certification marks owned by CREA and are used to identify real estate services provided by brokers and salespersons who are members of CREA. The trademarks REALTOR®, REALTORS® and the REALTOR® logo are controlled by The Canadian Real Estate Association (CREA) and identify real estate professionals who are members of CREA. Used under license.
|